產品展示
攔汙除汙係列
ZHG型反撈式格柵除汙機
發布時間:2018-07-02 點擊次數:8993 次

概述
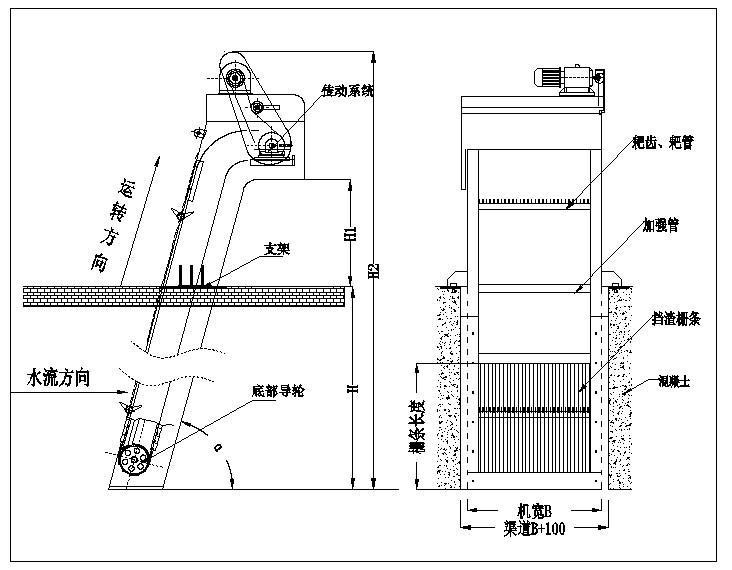
反撈式格柵除汙機為粗格柵,又稱雨水格柵,或者回轉耙式格柵,是一種用於清除水體重較大固體懸浮物的大型粗格柵設備,本裝置可以連續清除液體中的固體懸浮物,設計合理,結構簡單,運轉安全可靠,自動化程度高,可廣泛運用於城市汙水處理,自來水廠取水口,雨水泵站,發電廠冷卻水取水口等大流量的水處理場所。設備結構參照了回轉式格柵除汙機的優點,采用與眾不同的工作原理,即耙齒鏈在柵前後作回轉運動,當耙齒運轉到柵條的迎水麵時,即插入柵條縫隙中由下往上作清撈動作,耙齒鏈采用封閉式,不讓雜物侵入,使設備運轉平穩。在設備安裝時采用整機吊裝,隻需在集水井兩側的地坪上預埋兩塊鋼板,土建簡單,安裝維修方便。
工作原理
反撈式格柵除汙機由機架、驅動裝置、傳動導輪、耙鏈組合及耙齒、擋渣柵條。擋渣板等組成。在電機驅動下,牽引鏈條在迎水麵由下往上作回轉運動。當牽引鏈上的耙齒軸運轉到柵條的迎水麵時。耙齒即插入柵條縫隙中由下往上作清撈動作,將柵條上所截留的雜物刮落耙中,清除效率高且徹底。當齒耙運轉到機器上,雜物靠自重自行脫落至容器或輸送機上,把雜物送走。
反撈式格柵除汙機為粗格柵,又稱雨水格柵,或者回轉耙式格柵,是一種用於清除水體重較大固體懸浮物的大型粗格柵設備,本裝置可以連續清除液體中的固體懸浮物,設計合理,結構簡單,運轉安全可靠,自動化程度高,可廣泛運用於城市汙水處理,自來水廠取水口,雨水泵站,發電廠冷卻水取水口等大流量的水處理場所。設備結構參照了回轉式格柵除汙機的優點,采用與眾不同的工作原理,即耙齒鏈在柵前後作回轉運動,當耙齒運轉到柵條的迎水麵時,即插入柵條縫隙中由下往上作清撈動作,耙齒鏈采用封閉式,不讓雜物侵入,使設備運轉平穩。在設備安裝時采用整機吊裝,隻需在集水井兩側的地坪上預埋兩塊鋼板,土建簡單,安裝維修方便。
工作原理
反撈式格柵除汙機由機架、驅動裝置、傳動導輪、耙鏈組合及耙齒、擋渣柵條。擋渣板等組成。在電機驅動下,牽引鏈條在迎水麵由下往上作回轉運動。當牽引鏈上的耙齒軸運轉到柵條的迎水麵時。耙齒即插入柵條縫隙中由下往上作清撈動作,將柵條上所截留的雜物刮落耙中,清除效率高且徹底。當齒耙運轉到機器上,雜物靠自重自行脫落至容器或輸送機上,把雜物送走。

特點與應用
在運行過程中,雜物可能進入牽引鏈中,將鏈條卡死,故設計了封閉式牽引鏈。其主要有鏈板、鏈銷和滾輪組成,運行時由機架上的導軌作導向,滾輪在導軌上作滾動運動,阻力小且運轉平穩。
水下回轉輪定位采用不鏽鋼材質,配以耐磨銅套自潤滑軸承,免去水下部件的日常維護。
擋渣部分采用固定柵條形式,有較強的耐衝擊力,能承受較大的水位差。
基於以上優點,反撈式格柵應用於較寬的河道攔汙、雨水泵站、河道取水口、汙水廠粗格柵等大流量的水處理場所。
訂貨參數
1、渠道(設備)寬度 2、渠道深度 3、出料高度 4、耙齒間隙 5、安裝角度 6、機架材質 7、耙齒材質 8、其餘要求
外形示意圖
在運行過程中,雜物可能進入牽引鏈中,將鏈條卡死,故設計了封閉式牽引鏈。其主要有鏈板、鏈銷和滾輪組成,運行時由機架上的導軌作導向,滾輪在導軌上作滾動運動,阻力小且運轉平穩。
水下回轉輪定位采用不鏽鋼材質,配以耐磨銅套自潤滑軸承,免去水下部件的日常維護。
擋渣部分采用固定柵條形式,有較強的耐衝擊力,能承受較大的水位差。
基於以上優點,反撈式格柵應用於較寬的河道攔汙、雨水泵站、河道取水口、汙水廠粗格柵等大流量的水處理場所。
訂貨參數
1、渠道(設備)寬度 2、渠道深度 3、出料高度 4、耙齒間隙 5、安裝角度 6、機架材質 7、耙齒材質 8、其餘要求
外形示意圖

B=機寬; H=渠深; H1=出渣高度; H2=H+H1+2000; α=安裝角度。
過水流量計算
反撈式格柵每小時過水流量:Q=K*(B-160)*h*V*3600,其中:
Q=過水流量(m³/h);K=與格柵間隙有關的流量係數(見係數表);B=格柵機寬(m);h=柵前水深(m),一般按1m或低於渠深0.3m以上;V=過流速度,一般取0.6~1m/s。
主要技術參數
過水流量計算
反撈式格柵每小時過水流量:Q=K*(B-160)*h*V*3600,其中:
Q=過水流量(m³/h);K=與格柵間隙有關的流量係數(見係數表);B=格柵機寬(m);h=柵前水深(m),一般按1m或低於渠深0.3m以上;V=過流速度,一般取0.6~1m/s。
主要技術參數
過流係數K
| 格柵間隙(mm) | 15 | 20 | 30 | 50 | 80 | 100 | >100 |
| 流量係數K | 0.42 | 0.5 | 0.6 | 0.71 | 0.8 | 0.83 | 0.85 |
注:可以采用插值法得出其他間隙對應K值的近似值。
ZHG反撈式格柵除汙機主要技術參數及外形尺寸列表
|
型號 (ZHG) |
設備寬度 (mm) |
溝寬 (mm) |
電機功率 (kw) | 過水流量(m³/h) | |||||
| 格柵間隙 (mm) | |||||||||
| 15 | 20 | 30 | 50 | 80 | 100 | ||||
| 800 | 800 | 900 | 1.1 | 581 | 691 | 829 | 982 | 1106 | 1147 |
| 1000 | 1000 | 1100 | 762 | 907 | 1089 | 1288 | 1452 | 1506 | |
| 1200 | 1200 | 1300 | 1.1~1.5 | 943 | 1123 | 1348 | 1595 | 1797 | 1865 |
| 1400 | 1400 | 1500 | 1125 | 1339 | 1607 | 1902 | 2143 | 2223 | |
| 1600 | 1600 | 1700 | 1306 | 1555 | 1866 | 2208 | 2488 | 2582 | |
| 1800 | 1800 | 1900 | 1488 | 1771 | 2125 | 2515 | 2834 | 2940 | |
| 2000 | 2000 | 2100 | 1669 | 1987 | 2385 | 2822 | 3180 | 3299 | |
| 2200 | 2200 | 2300 | 1851 | 2203 | 2644 | 3129 | 3525 | 3657 | |
| 2400 | 2400 | 2500 | 2032 | 2419 | 2903 | 3435 | 3871 | 4016 | |
| 2600 | 2600 | 2700 | 1.5~2.2 | 2214 | 2635 | 3162 | 3742 | 4216 | 4374 |
| 2800 | 2800 | 2900 | 2395 | 2851 | 3421 | 4049 | 4562 | 4733 | |
| 3000 | 3000 | 3100 | 2576 | 3067 | 3681 | 4355 | 4908 | 5092 | |
- 上一篇:WBF轉刷網蓖式格柵除汙機
- 下一篇:ZG轉鼓式格柵除汙機
相關產品





掃一掃
蘇公網安備32028202232133號